ドゥーエ日暮里|Due日暮里 Fタイプ

物件のお問い合わせはこちら
お電話でお問い合わせの際は、お問い合わせ番号「S-50686」とお伝えください。
0120-500-529
営業時間 10:00~19:00
この部屋の特徴
この部屋の設備
『仲介手数料無料&礼金0ヶ月』!
一部住戸フリーレント1ヶ月!
当社では初期費用をクレジットカード決済にてお支払い頂けます♪
※分割払いに変更も可能です。
JR山手線・京浜東北線2駅利用可能!
複数路線駅が利用可能で交通アクセス良好!
ペット可ハイグレードレジデンス♪
『ドゥーエ日暮里』が2022年2月に完成!
インターネット使用料無料回線導入物件♪
徒歩圏内にはスーパー・コンビニ等も有り生活環境良好です。







ドゥーエ日暮里|Due日暮里 Fタイプのお問い合わせ
空室確認・内覧予約などお気軽にご相談ください。
お電話でお問い合わせの際は、お問い合わせ番号「S-50686」とお伝えください。
0120-500-529
営業時間 10:00~19:00
周辺地図
物件概要
| 物件名称 | ドゥーエ日暮里|Due日暮里 |
|---|---|
| 物件種別 | マンション |
| 部屋タイプ | Fタイプ |
| 所在地 | 東京都荒川区東日暮里6-22-16 |
| 築年月 | 2022年02月 |
| 構造 | 鉄筋コンクリート(RC造) |
| 所在階 | -/9階建て |
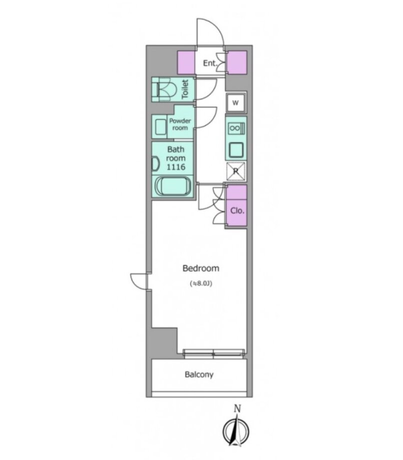
| 間取り | 2LDK |
| 間取り詳細 | LDK10.0J+洋室6.0J+洋室4.6J |
| 専有面積 | 51.33m² |
| 賃料 | 230,000円 |
| 管理費 | 15,000円 |
| その他月額費用 | 0円 |
| 保証金 | 0ヶ月 |
| 保険料 | 21,500円 |
| 更新料 | 1ヶ月 |
| 仲介手数料 | 0ヶ月 |
| フリーレント | 1ヶ月 |
| 保証会社利用料 | 0円 |
| その他(鍵交換代など) | 44,000円 |
| こだわり条件 | デザイナーズ , ペット可 , 二人入居可 , バストイレ別 , ウォシュレット , 浴室乾燥機 , 洗面台独立 , 宅配ボックス , オートロック , 駐車場 , 駐輪場 , 保証人不要 , インターネット無料 |
| 費用・条件 | 仲介手数料無料 , 契約金カード決済可 , フリーレント , 保証人不要 , 保証会社利用可 |
| 陽当たり・採光 | 南向き , 角住戸 , 2面採光 |
| 間取り(特徴・設備) | サービスルーム , 振分 |
| キッチン | システムキッチン , ガスキッチン , 2口コンロ , 独立型キッチン |
| 浴室・トイレ・洗面所 | バストイレ別 , 脱衣所 , 浴室乾燥機 , 追焚機能 , 温水洗浄便座 , 洗面所独立 |
| 冷暖房・空調・光熱設備 | 24時間換気システム |
| バルコニー・テラス | バルコニー |
| 室内設備・情報設備・仕様 | フローリング , 室内洗濯置 , エアコン , BS・CS , ネット使用料不要 , マルチメディアコンセント , TVインターホン |
| 収納 | クローゼット , 靴入 |
| 照明 | 人感センサー , ダウンライト |
| 良好 | 風通良好 , 陽当り良好 |
| 空室状況 | 空室 |
| 備考 | ペットの飼育についての条件 小型犬もしくは猫1匹まで。 ※飼育時は敷金1ヶ月増額 ※ご契約開始日より1年未満でご解約の場合は違約金として賃料2ヶ月分、2年未満でご解約の場合は違約金として賃料1ヶ月分が掛かります。 |
| 取引態様 | 媒介 |
| 次回更新予定日 | 随時 |
ドゥーエ日暮里|Due日暮里の部屋一覧
| 部屋番号 | 間取り 図 | 間取り 専有面積 |
賃料 管理費 |
敷金 礼金 |
検討 リスト |
|---|---|---|---|---|---|
| D4タイプ |
![]() |
1K 25.81m² |
130,000円 10,000円 |
敷1ヶ月 礼0ヶ月 |
|
| Bタイプ |
![]() |
1K 26.24m² |
135,000円 10,000円 |
敷1ヶ月 礼0ヶ月 |
|
| Aタイプ |
![]() |
1K 25.28m² |
***円 ***円 |
敷***ヶ月 礼***ヶ月 |
|
| A’タイプ |
![]() |
1K 25.49m² |
***円 ***円 |
敷***ヶ月 礼***ヶ月 |
|
| Dタイプ |
![]() |
1SLDK 50.93m² |
***円 ***円 |
敷***ヶ月 礼***ヶ月 |
|
| Eタイプ |
![]() |
2LDK 51.29m² |
***円 ***円 |
敷***ヶ月 礼***ヶ月 |
|
| Hタイプ |
![]() |
2LDK 50.23m² |
***円 ***円 |
敷***ヶ月 礼***ヶ月 |
|
| Gタイプ |
![]() |
2LDK 50.1m² |
***円 ***円 |
敷***ヶ月 礼***ヶ月 |
|
| Jタイプ+ルーフバルコニー付き |
![]() |
2LDK 58.08m² |
***円 ***円 |
敷***ヶ月 礼***ヶ月 |
※掲載中の部屋タイプ以外にも異なる部屋タイプがある場合がございます。詳細はお問い合わせ下さい。
※当サイトは最新物件情報からこれまでの物件情報も含まれる賃貸アーカイブサイトです。 最新の空室確認はメールかお電話にてお問い合わせください。
※お問い合わせ頂きました物件が満室の場合でも、これまでの物件情報をご参考に『空き待ち予約』とスタッフにお伝え頂ければご希望のお部屋が空き次第、お客様へご連絡させて頂きます。







